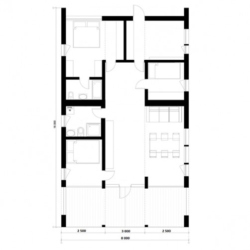
МН 1.81 — это инновационный модульный дом премиум-класса площадью 81 м², созданный для тех, кто ценит современные технологии, экологичность и безупречный дизайн. Просторная планировка, панорамное остекление и интеллектуальные инженерные решения делают этот проект идеальным для комфортного проживания, работы и отдыха.
Выбор местоположения
Мы свяжемся с Вами в течение дня.